产品特点
1.自动控制检测星空体育内气体含氧量
2.在线测量星空体育内气体氧含量浓度
3.星空体育内气体含氧量超标报警停机功能
4.星空体育内气体含氧量超标禁止启动功能
5.自动控制星空体育内充氮气流量的大小
6.可根据用户工艺要求任意设定氮气含量浓度报警值,更改星空体育工作条件
7.预留外部中断接口,可用来链接星空体育振动保护、开盖保护等安全限制,使星空体育使用起来更加安全
8.可先配PIC全自动控制系统,自动化程度更高
9.压力检测
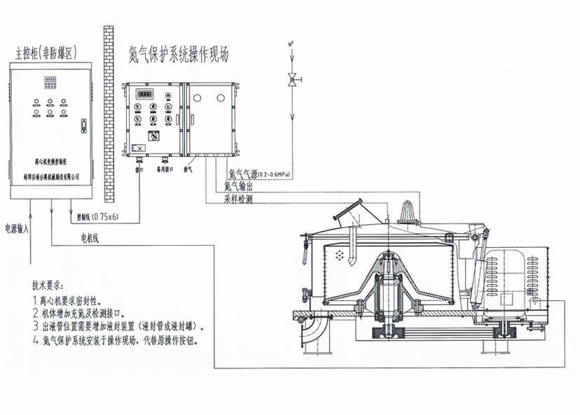
全自动氮气保护系统流程图